コートアベニュー足利404

【外観】の画像

【外観】 -

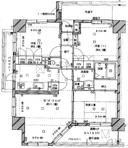
【間取り】の画像

【間取り】 -

【外観】の画像 外観
【間取り】の画像 間取り

中古マンション

価格
1,200万円 支払いシミュレーション
所在地
栃木県足利市通3丁目 MAP
交通
両毛線「足利」駅徒歩14分
利回り
表面8.00%
管理費
9,070円
間取り
3LDK
専有面積
内法 : 66.54㎡
向き
南東
築年月(築年数)
1988年 2月 (築38年)
所在階 / 階建て
4階 / 11階建て

まずはご相談ください!

0284-21-2345

営業時間
9:30 ~17:00
定休日
火曜・水曜・他

担当者スタッフより

中澤良佑

おすすめポイント

【足利市の中心地で利便性良好!】お店が周囲に充実の好立地◆◇東南角部屋で日当たり良好◆◇

中澤良佑 (部署名:売買営業部 | 資格:宅地建物取引士)

まずはご相談ください!

営業時間
9:30 ~17:00
定休日
火曜・水曜・他

物件概要

物件番号:75180206 /  情報更新日:2026年03月01日 /  更新予定日:2026年03月15日 /  取引条件の有効期限:2026年03月15日 情報の見方
価格 1,200万円 支払いシミュレーション 利回り 表面8.00%
管理費 9,070円 修繕積立金 / 修繕積立基金 12,660円 / -
所在地 栃木県足利市通3丁目 MAP 交通
    両毛線「足利」駅徒歩14分
    東武伊勢崎線「足利市」駅徒歩13分
間取り(詳細) 3LDK 専有面積 内法 : 66.54㎡
築年月(築年数) 1988年 2月 (築38年) 建物構造 鉄骨鉄筋コンクリート
向き 南東 所在階 / 階建て 4階 / 11階建て
バルコニー面積 11.06㎡ ルーフバルコニー面積 -
テラス面積 - 専用庭面積 -
現況 / 引渡時期 賃貸中 / 相談 駐車場 / 月額料金 空有 / -
土地権利 所有権 地目 / 地勢 - / 平坦
用途地域 商業 都市計画 市街化区域
管理組合有無 管理形態 管理会社に全部委託
管理方式 日勤 管理会社 株式会社長谷工コミュニティ
国土法届出要否 不要 販売戸数 / 棟総戸数 - / 40戸
取引態様 専任媒介 建築確認番号 -
設備条件
  • 日当たり良好
  • 室内洗濯機置場
  • フローリング
  • バルコニー
  • 都市ガス
  • 公営水道
  • 公共下水
  • エレベーター
  • 照明器具付き
  • 駐輪場
  • バイク置場あり
  • ガスコンロ
  • コンロ2口以上
  • システムキッチン
  • 対面式キッチン
  • コンロ3口
  • バス・トイレ別
  • 温水洗浄便座
  • エアコン
備考 【オーナーチェンジ物件】年間家賃収入:960,000円
管理費:11,180円 修繕積立金:23,560円 計34,740円

・現況有姿にて売買
・駐車場料金:2,000〜10,500円/台・月
・ペット不可

地図

※地図上に表示される物件の位置は付近住所に所在することを表すものであり、実際の物件所在地とは異なる場合がございます。

まずはご相談ください!

営業時間
9:30 ~17:00
定休日
火曜・水曜・他

取り扱い店舗(株式会社さくら屋)

株式会社さくら屋の画像

所在地
栃木県足利市通4丁目2573 
電話番号
0284-21-2345
営業時間
9:30 ~17:00
定休日
火曜・水曜・他

支払いシミュレーションこの物件を購入した場合の、月々の支払い価格の一例です。借り入れを保証するものではございません。

返済期間
金利
ボーナス時の増額(1回分)
借入金額
頭金

※元利均等方式金利5.00%まで※返済年数5~50年まで入力できます

※ボーナスは年2回で計算しています。1000万円まで入力できます

毎月の返済額

まずはご相談ください!

営業時間
9:30 ~17:00
定休日
火曜・水曜・他

売却査定

お問い合わせ